Proyecto: Bustamante 675
Comuna : Ñuñoa
Año : 2025
Tamaño : 110 m2
En el corazón del Parque Bustamante, esta remodelación rescata la esencia de un departamento de los años 50, combinando patrimonio y arquitectura contemporánea.
El proyecto se centró en recuperar el piso original de parquet, restaurandolo como elemento protagónico y memoria material del espacio. Se mantuvo la estructura original del edificio, respetando su lógica constructiva y valor histórico.
La intervención abrió los recintos para potenciar la luz natural y ampliar las visuales hacia el Parque Bustamante y la Cordillera de los Andes. La nueva configuración espacial permite continuidad, amplitud y mayor conexión con el entorno.
Como gesto arquitectónico central, se incorpora una escalera caracol metálica color rojo que conduce a la terraza. Más que un elemento funcional, es una pieza escultórica que organiza el espacio y aporta identidad contemporánea al proyecto.
Proyecto: Villa Frei
Comuna : Ñuñoa
Año : 2025
Tamaño : 100 m2
En este departamento de Villa Frei, uno de los conjuntos habitacionales más emblemáticos de Ñuñoa, actualizamos una distribución original de los años 60 para responder a nuevas formas de
habitar.
Rediseñamos espacios para integrar el trabajo remoto, mejoramos la eficiencia térmica y acústica, y reforzamos la estructura sin perder el carácter del edificio.
Todo esto gracias al trabajo coordinado entre arquitectos, trabajadores y proveedores, que hicieron posible una transformación respetuosa, funcional y contemporánea.
Proyecto: Matilde Salamanca
Comuna : Providencia.
Año : 2025
Tamaño : 100 m2
En este proyecto de remodelación integral, trabajamos sobre un departamento construido en la década de 1940, conservando su identidad arquitectónica y adaptándolo a un modo de habitar contemporáneo.
La propuesta se centró en recuperar los valores originales del inmueble, destacando los pisos de madera maciza —que fueron cuidadosamente restaurados—, junto con puertas y ventanas originales, rescatadas y puestas nuevamente en valor.
La cocina, antes compartimentada y oscura, fue completamente rediseñada en una paleta de blancos, negros y madera natural, logrando mayor luminosidad, amplitud y coherencia material con el resto de la vivienda.
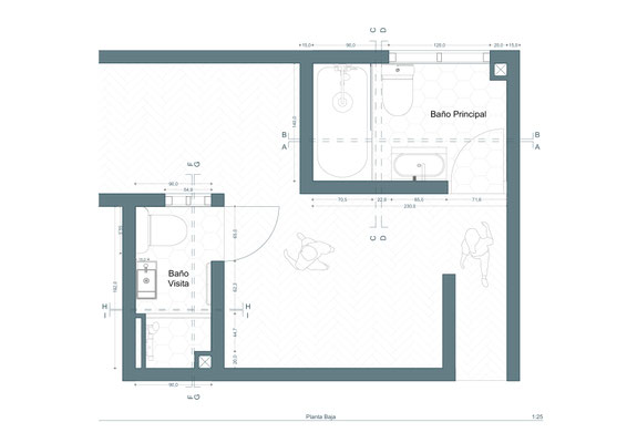
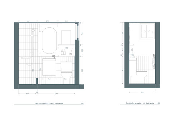
Proyecto: Baños Valencia
Comuna : Ñuñoa.
Año : 2025
Tamaño : 20 m2
En esta remodelación minimalista, cálida y funcional, pensamos en cada detalle desde la paleta de colores hasta las texturas de sus revestimientos, aportando calidez con la madera y siempre con iluminación puntual y general para generar distintos ambientes.
Proyecto: Remodelación Vitacura
Comuna : Vitacura.
Año : 2025
Tamaño : 120 m2
Este proyecto consistió en la transformación completa de un departamento familiar, con el objetivo de generar espacios más amplios, funcionales y acogedores. El corazón de la propuesta fue la cocina, generando un espacio de reunión.
Se renovaron todos los pisos, optando por madera de roble, aportando calidez y continuidad visual. La paleta de colores neutra actúa como base atemporal, mientras que los acentos en madera natural aportan textura y carácter al ambiente.
Proyecto: Remodelación Departamento Tobalaba
Comuna : Providencia.
Año : 2025
Tamaño : 180 m2
Este proyecto consistió en la transformación completa de un departamento familiar, con el objetivo de generar espacios más amplios, funcionales y acogedores. El corazón de la propuesta fue la apertura de la cocina, incorporándola al área social bajo un concepto abierto que favorece la interacción y la luz natural.
Se renovaron todos los pisos, optando por madera de roble, aportando calidez y continuidad visual. La paleta de colores neutra actúa como base atemporal, mientras que los acentos en madera natural aportan textura y carácter al ambiente.
El resultado es un hogar moderno y luminoso, diseñado para acompañar la vida familiar con elegancia y funcionalidad.
Proyecto: Remodelación Departamento Manuel de Salas
Comuna : Ñuñoa.
Año : 2025
Tamaño : 200 m2
Proyecto de remodelación integral en departamento familiar, con una propuesta centrada en la funcionalidad, la continuidad espacial y la calidez material. La intervención incluyó la apertura de la cocina hacia el área social, configurando un concepto abierto que favorece la integración y la vida en común. Se diseñó mobiliario a medida para cocina, loggia y closets, optimizando almacenamiento y adaptándose a las necesidades del día a día. El cambio de pavimento por madera de roble aporta textura, naturalidad y una sensación acogedora, mientras que la paleta cromática —dominada por tonos neutros y un verde glaciar como acento— refuerza la identidad serena y contemporánea del espacio.
Proyecto: Remodelación Departamento Zenteno
Comuna : Santiago.
Año : 2025
Tamaño : 100 m2
Proyecto: Remodelación Copihue
Comuna : Providencia.
Año : 2024
Tamaño : 50 m2
El encargo de este proyecto fue realizar una remodelación completa a un departamento , bajo el concepto de un espacio de trabajo pero a la vez un espacio de relajo, para esto diseñamos un espacio de cocina abierta con una isla a una altura de mesa de comedor para permanecer mas tiempo, un home office en el antiguo comedor, rediseñar living , baño y dormitorio.
Proyecto: Remodelación Baños Bilbao
Comuna : Providencia.
Año : 2024
Tamaño : 20 m2
Proyecto de remodelación de dos baños originales de los años 90, con una propuesta que combina funcionalidad contemporánea y estética atemporal. Se eligió una paleta de colores neutros para maximizar la luminosidad y generar una atmósfera tranquila, complementada con acentos en azul que aportan frescura y profundidad visual. La madera, presente en mobiliario y detalles, actúa como elemento unificador y añade calidez al espacio. Se optimizó la distribución para mejorar la circulación y el aprovechamiento del espacio, incorporando iluminación indirecta, revestimientos de distintos formatos y griferías de líneas limpias que refuerzan la modernidad del conjunto.
Proyecto: Regularización Casa Bosque
Comuna : Santiago.
Año : 2024
Tamaño : 60 m2
Encargo de regularización y modelación ,casona en el barrio Yungay Consejo Monumentos Nacionales - SERVIU - DOM Santiago.
Proyecto: Remodelación Bellavista
Comuna : Recoleta.
Año : 2023
Tamaño : 60 m2
El proyecto nace de la idea de generar una atmosfera de habitación de hotel, y bajo este requerimiento se rearma la planta completa del departamento , eliminando muros abriendo vistas y reorganizando los espacios.
Paleta de colores elegida para este proyecto negro mate , madera , gris concreto , verde glaciar.
Proyecto: Ampliación y Remodelación Casa Echeñique.
Comuna : La Reina.
Año : 2022
Tamaño : 140 m2
En esta casa del año 1950, el encargo principal fue mejorar la iluminación natural, es por esto que se propuso en el espacio de estar principal lucarnas de termopanel que dejaran pasar la luz de mañana y reflejaran la luz de la tarde.
Los materiales propuestos fueron principalmente cielos de madera tinglada , muros blancos y piso en porcelanato gris , generando una paleta neutra.
Se remodelo completamente cocina y baños elevando la altura de cielos existentes y otorgando protagonismo a las vigas de roble originales.
Proyecto: Remodelación Departamento Alderete
Comuna : La Florida.
Año : 2022
Tamaño : 25 m2
El encargo, en este departamento, era integrar la cocina al espacio de estar y comedor, a través de una isla , así también se logro integrar el acceso generando un espacio luminoso y con mayor amplitud.
Los materiales fueron cuarzo para la isla en tonos blanco y grises y se enmarco el acceso integrando la cocina con panelwood.
Proyecto: Remodelación Cocina Hernando de Aguirre.
Comuna : Providencia.
Año : 2021
Tamaño : 18 m2
En este departamento el encargo era remodelar una cocina de los años 90 e integrar la loggia a esta, incorporando el espacio de terraza a la cocina que se transforma en un espacio de permanencia.
Los materiales fueron cuarzo blanco absoluto , paleta de color blanco , azul , gris y madera.
Proyecto: Regularización Museo Taller
Comuna : Providencia.
Año : 2021
Tamaño : 519 m2
Asesoría legal para la recuperación de casona en barrio Yungay, ingreso de expediente a Consejo de Monumentos Nacionales, SERVIU y DOM de la comuna de Santiago, para posterior remodelación de museo taller.
Proyecto: Remodelación Departamento Nataniel Cox.
Comuna : Santiago.
Año : 2021
Tamaño : 100 m2
Esta remodelación fue desarrollada bajo el encargo de otorgar luz al espacio principal , unir cocina con el comedor y remodelar por completo baño y cocina.
Se recupero el piso de madera, se utilizo una paleta de color blanco, negro, gris y madera.
Proyecto: Remodelación Casa Moneda 2350.
Comuna : Santiago.
Año : 2021
Tamaño : 402 m2
En esta casona Patrimonial del año 1929 , la cual funcionaba como Hostal , se solicito desarrollar proyecto de reforma para el buen funcionamiento de oficinas de la Federación nacional de sindicatos de Walmart.
Se desarrollo un estudio de calculo estructural para levantar las condiciones de la casona , lo cual arrojo que se debían hacer refuerzos estructurales en primer y segundo piso.
Se restauro la fachada protegida por CMN y se recuperaron espacios interiores que habían sido intervenidos, desarrollando en ellos oficinas , sala de reuniones , habitaciones y servicios.
Proyecto: Remodelación Cocina Frank.
Comuna : Santiago.
Año : 2021
Tamaño : 15 m2
Remodelar una cocina pequeña es un gran desafío y en esta cocina se logro remodelar el espacio modernizando la cocina con todos los requerimientos básicos.
La paleta de colores utilizada fueron grises , blancos y madera.
Proyecto: Remodelación Departamento Pedro de Valdivia.
Comuna : Santiago.
Año : 2020
Tamaño : 140 m2
En este gran departamento, el encargo principal fue generar 3 espacios completamente individualizados, cada espacio con servicios y áreas de descanso.
En este proyecto de diseño nórdico se ocupo una paleta de colores grises, blancos , azules y madera.
Cada rincón nos habla de un espacio de relajo , luminoso y sutil.
Proyecto: Remodelación Departamento Quito.
Comuna : Santiago.
Año : 2019
Tamaño : 110 m2
El encargo en este hermoso departamento del año 1940, fue, remodelación completa, pero restaurando todo lo que se lograra restaurar puertas, molduras, pisos y ventanas de madera.
Nuestra paleta propuesta fue en tonos azules , madera, negro y blanco.
Proyecto: Remodelación Departamento Carlos Antúnez.
Comuna : Providencia.
Año : 2018
Tamaño : 80 m2
El encargo en este departamento de esta emblemática torre "los escalímetros" de Carlos Antúnez , fue abrir el espacio de la cocina hacia el comedor , generando un espacio mas luminoso y acogedor.
Nuestra paleta propuesta fue en tonos verdes, tierras y blanco.
Proyecto: Remodelación Departamento Hernando de Aguirre.
Comuna : Providencia.
Año : 2019
Tamaño : 120 m2
El encargo fue la remodelación completa espacio de cocina , baños living comedor, cambio de ventanas termopanel , vitrificado y recuperación de pisos de madera.
Nuestra paleta propuesta fue en tonos verdes ,tierras y blanco.
Proyecto: Remodelación Departamento Carlos Antúnez.
Comuna : Providencia.
Año : 2018
Tamaño : 150 m2
El encargo fue la remodelación completa espacio de cocina abriendo esta hacia el estar , baños living comedor.
Nuestra paleta propuesta fue en tonos negros ,tierras y blanco.
Proyecto: Remodelación Departamento San Diego.
Comuna : Santiago.
Año : 2018
Tamaño : 120 m2
El encargo fue la remodelación completa de este departamento el cual no se encontraba en condiciones de habitabilidad, se recupero el piso de madera y la baldosa de cocina y balcones, se abrieron espacios para que entrara la luz natural , respetando la fachada del edificio.
Nuestra paleta propuesta fue en tonos verdes , grises ,tierras y blanco.
Proyecto: Remodelación Departamento Antonio Varas.
Comuna : Santiago.
Año : 2018
Tamaño : 150 m2
El encargo fue la remodelación y ampliación de terraza se cambiaron pisos por tonos claros para dar amplitud al espacio, cambio de ventanas e instalaciones.
Paleta de colores gris, blanco , negro.
Proyecto: Remodelación Casa Root.
Comuna : Santiago.
Año : 2018
Tamaño : 80 m2
El encargo fue la remodelación completa de esta vivienda el cual no se encontraba en condiciones de habitabilidad, se recupero el piso de madera y la baldosa de cocina y balcones, se abrieron espacios para que entrara la luz natural , respetando la fachada del edificio.
Nuestra paleta propuesta fue en tonos amarillos , grises ,tierras y blanco.
Proyecto: Remodelación Departamento Miraflores.
Comuna : Santiago.
Año : 2018
Tamaño : 90 m2
El encargo fue la remodelación completa de este departamento el cual no se encontraba en condiciones de habitabilidad, se cambiaron pisos , se dividieron espacios, para generar dos ambientes , se cambiaron ventanas respetando la fachada del edificio.
Nuestra paleta propuesta fue en tonos madera , grises ,tierras y blanco.
